道教建筑·登封中岳庙
中岳庙位于登封市东4km处的中岳庙村,为世界文化遗产“天地之中”嵩山历史建筑群的重要组成部分、全国重点文物保护单位。
中岳庙是中岳嵩山主峰太室山的祀庙,其名称经历了太室祠、嵩岳庙、中岳庙的变化。据《山海经》载,太室山神祠是统领华夏文明发源核心区的宗祠,其祀神形象为人身三首,是该书所列中国诸山之神中级别最高的神灵。汉武帝刘彻游嵩岳时,因闻山呼万岁,令祠官加增其神祠,遂使之成为国家级常祭之庙。汉武帝、唐武则天、清代乾隆皇帝均曾亲临拜祭。唐宋两代是中岳庙的鼎盛时期,曾有“飞甍映日,杰阁联云”的宏大规模。庙内现存金承安五年(1200)《重修中岳庙图碑》所反映的风貌,代表了中国宋金时期国祀祠庙的建筑制度。清乾隆年间(1736—1795),朝廷对中岳庙大加整修,并设置道会司,以掌管全县的道教事务。
中岳庙的整体规划极具匠心。据清代高一麟《嵩岳庙史·序》载,中岳庙后倚黄盖峰、主山青冈坪、祖山太室山,左右分傍牧子岗与望朝岭,面对玉案山,庙前奈河自西北向东南蜿蜒而去,再南复有箕山为案山,大、小熊山为山阙,其选址完全符合中国古代堪舆学理论。中岳庙规模宏大,从石阙到黄盖亭中轴线长达1.6km,布局充满节奏与韵律,是中国古代建筑艺术的典范。曾有学者以其建筑体量为音阶、以建筑间距为音节,谱出三段上升旋律的优美乐曲。
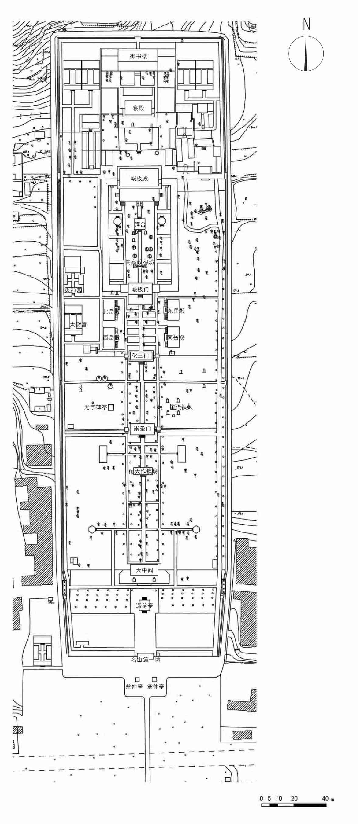
现存中岳庙保留了宋代的平面布局、以明代建筑天中阁和清代乾隆年间所建造的峻极殿为代表的木构建筑及东汉至清代的金石文物。庙前500m处为东汉石阙,为世界文化遗产“天地之中”嵩山历史建筑群的内容之一。庙院南北长650m,东西宽166m,占地10.8h㎡,沿中轴线分布有汉代石翁仲、名山第一坊、遥参亭、天中阁、配天作镇坊、崇圣门、化三门、峻极门、嵩高峻极坊、拜台、中岳大殿(峻极殿)、寝殿和御书楼,中轴两侧有太尉宫、火神宫、祖师宫、神州宫、小楼宫、行宫遗址等跨院建筑,共七进十一层院落,落差达37m。庙后约500m的黄盖峰上立有黄盖亭,为中岳庙建筑群的尾声。
中岳庙藏有东汉、北魏及唐至清金石造像36座、碑碣83品,其中以东汉石阙与翁仲、北魏《嵩高灵庙之碑》、宋金四状元碑、宋代四铁人、金代《重修中岳庙图碑》与铸铁狮子最为珍贵。庙内保存汉至清代古柏331株,为国内少有。
中岳庙是国内现存规模最大、古建筑保存最完整、古树名木最多的五岳祠庙。

总平面图(文宣提供)

全景(文宣提供)

天中阁(文宣提供)

配天作镇坊(文宣提供)

御书楼(文宣提供)

峻极殿(文宣提供)

东汉石翁仲(文宣提供)

宋代铁人(文宣提供)